Sector-4, Sohna
Ninex Sriflex City is an Affordable Housing Project in the prime location of South Gurgaon. This affordable project is located in Sector-4, Sohna, South of Gurgaon. It is a New Launch affordable project with luxury amenities, and prime location and excellent connectivity.
Ninex Sector 4 Sohna is spread over approx. 8.76 acres of land parcel surrounded by lush green landscape. There are 6 towers in this affordable project, and the total number of flats in this project is approx. 1105. It is a RERA-approved project, and the RERA number of Sriflex City is 41 for 2024.
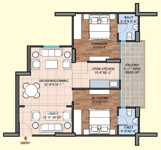
This residential project offers spacious 2BHK apartments in three configurations. It is developed by Ninex Group, known for its quality, and it has strong credibility in the market. This group has several other projects in Gurgaon.
In this affordable project, you get all kinds of luxury specifications that are needed for a modern-day lifestyle. At Ninex Sector 4 Sohna, you get parking, an outdoor gym area, a meditation area, a paved plaza, a multi-purpose court, a kids’ play area, a trellis, and much more.
This residential project is located at the prime location of South Gurgaon. It is in proximity to the Delhi Mumbai Expressway and KMP Expressway. Sriflex City Sohna is in proximity to reputed educational institutes like KR Mangalam, GD Goenka, etc.
It is in proximity to IMT Sohna, and this project is just 15-minute drive to Golf Course Road. Ninex Affordable Sector 4 Sohna is well-connected to IGI Airport and other major roads like Peripheral Road, NH-8, and Golf Course Road Extension.
In conclusion, Sriflex City is an excellent, affordable project in terms of connectivity, location, specifications and builder credibility. If you are looking affordable residential project for self-use or investment, it is an ideal opportunity.
For more information, connect with Larisa Realtech, and Get the Best Deals and Services. If you want more information regarding Ninex Sriflex City Sohna contact us at 8750-868686. Our experts will connect you as early as possible.
Ninex Developers is a real estate company known for its commitment to quality construction and innovative architectural designs. Based in India, Ninex Developers has established a strong reputation for delivering residential and commercial projects that cater to the needs of a diverse clientele.
The firm’s portfolio includes a variety of property types, such as luxurious residential complexes, affordable housing options, etc.
The company’s vision is to provide clients with high-quality living and working spaces that enhance their quality of life. Ninex Developers strives to be a leader in the real estate industry by continuously innovating and adapting to the changing needs of the market.
| Project Name | Sriflex City |
| Builder Name | Ninex Group |
| Location | Sector-4, Sohna, South of Gurgaon |
| Project Type | Affordable Flats |
| Unit Type | 2BHK |
| HRERA No. | 41 OF 2024 |
| Project Status | New Launch |
| Starting Price | 29.78 Lacs* |
Yoga Center and Meditation Hall
Pollution Free
CCTV Camera Surveillance
Lush green parks with running track
Lift
Earthquake Resistance
| Price List | ||||||||||||||||||||||||||||||||||||||||||||||||||||||||||||||||||||||||||||||||||||||||||||||||||||||||||||||||||||||||||||||||||||||||||||||||||||||||||||||||||||||||||||||||||||||||||||||||||||||||||||||||||||||||||||||||||||||||||||||||||||||||||||||||||||||||||||||||||||||||||||||||||||||||||||||||||||||||||||||||||||||||||||||||||||||||||||||||||||||||||||||||||||||||||||||||||||||||||||||||||||||||||||||||||||||||||||||||||||||||||||||||||||||||||||||||||||||||||||||||||||||||||||||||||||||||||||||||||||||||||||||||||||||||||||||||||||||||||||||||||||||||||||||||||||||||||||||||||||||||||||||||||||||||||||||||||||||||||||||||||||||||||||||||||||||||||||||||||||||||||||||||||||||||||||||||||||||||||||||||||||||||||||||||||||||||||||||||||||||||||||||||||||||||||||||||||||||||||||||||||||||||||||||||||||||||||||||||||||||||||||||||||||||||||||||||||||||||||||||||||||||||||||||||||||||||||||||||||||||||||||||||||||||||||||||||||||
| Unit Type | Total Flats | Carpet Area (sq.ft) | Balcony (sq.ft) | Total Price (₹) | ||||||||||||||||||||||||||||||||||||||||||||||||||||||||||||||||||||||||||||||||||||||||||||||||||||||||||||||||||||||||||||||||||||||||||||||||||||||||||||||||||||||||||||||||||||||||||||||||||||||||||||||||||||||||||||||||||||||||||||||||||||||||||||||||||||||||||||||||||||||||||||||||||||||||||||||||||||||||||||||||||||||||||||||||||||||||||||||||||||||||||||||||||||||||||||||||||||||||||||||||||||||||||||||||||||||||||||||||||||||||||||||||||||||||||||||||||||||||||||||||||||||||||||||||||||||||||||||||||||||||||||||||||||||||||||||||||||||||||||||||||||||||||||||||||||||||||||||||||||||||||||||||||||||||||||||||||||||||||||||||||||||||||||||||||||||||||||||||||||||||||||||||||||||||||||||||||||||||||||||||||||||||||||||||||||||||||||||||||||||||||||||||||||||||||||||||||||||||||||||||||||||||||||||||||||||||||||||||||||||||||||||||||||||||||||||||||||||||||||||||||||||||||||||||||||||||||||||||||||||||||||||||||||||||||||||||
| 2BHK TYPE 1 | 456 | 644.65 | 99.67 | 30.20 Lacs* | ||||||||||||||||||||||||||||||||||||||||||||||||||||||||||||||||||||||||||||||||||||||||||||||||||||||||||||||||||||||||||||||||||||||||||||||||||||||||||||||||||||||||||||||||||||||||||||||||||||||||||||||||||||||||||||||||||||||||||||||||||||||||||||||||||||||||||||||||||||||||||||||||||||||||||||||||||||||||||||||||||||||||||||||||||||||||||||||||||||||||||||||||||||||||||||||||||||||||||||||||||||||||||||||||||||||||||||||||||||||||||||||||||||||||||||||||||||||||||||||||||||||||||||||||||||||||||||||||||||||||||||||||||||||||||||||||||||||||||||||||||||||||||||||||||||||||||||||||||||||||||||||||||||||||||||||||||||||||||||||||||||||||||||||||||||||||||||||||||||||||||||||||||||||||||||||||||||||||||||||||||||||||||||||||||||||||||||||||||||||||||||||||||||||||||||||||||||||||||||||||||||||||||||||||||||||||||||||||||||||||||||||||||||||||||||||||||||||||||||||||||||||||||||||||||||||||||||||||||||||||||||||||||||||||||||||||
| 2BHK TYPE 2 | 431 | 644.65 | 145.74 | 30.20 Lacs* | ||||||||||||||||||||||||||||||||||||||||||||||||||||||||||||||||||||||||||||||||||||||||||||||||||||||||||||||||||||||||||||||||||||||||||||||||||||||||||||||||||||||||||||||||||||||||||||||||||||||||||||||||||||||||||||||||||||||||||||||||||||||||||||||||||||||||||||||||||||||||||||||||||||||||||||||||||||||||||||||||||||||||||||||||||||||||||||||||||||||||||||||||||||||||||||||||||||||||||||||||||||||||||||||||||||||||||||||||||||||||||||||||||||||||||||||||||||||||||||||||||||||||||||||||||||||||||||||||||||||||||||||||||||||||||||||||||||||||||||||||||||||||||||||||||||||||||||||||||||||||||||||||||||||||||||||||||||||||||||||||||||||||||||||||||||||||||||||||||||||||||||||||||||||||||||||||||||||||||||||||||||||||||||||||||||||||||||||||||||||||||||||||||||||||||||||||||||||||||||||||||||||||||||||||||||||||||||||||||||||||||||||||||||||||||||||||||||||||||||||||||||||||||||||||||||||||||||||||||||||||||||||||||||||||||||||||
| 2BHK TYPE 3 | 218 | 637.00 | 93.00 | 29.78 Lacs* | ||||||||||||||||||||||||||||||||||||||||||||||||||||||||||||||||||||||||||||||||||||||||||||||||||||||||||||||||||||||||||||||||||||||||||||||||||||||||||||||||||||||||||||||||||||||||||||||||||||||||||||||||||||||||||||||||||||||||||||||||||||||||||||||||||||||||||||||||||||||||||||||||||||||||||||||||||||||||||||||||||||||||||||||||||||||||||||||||||||||||||||||||||||||||||||||||||||||||||||||||||||||||||||||||||||||||||||||||||||||||||||||||||||||||||||||||||||||||||||||||||||||||||||||||||||||||||||||||||||||||||||||||||||||||||||||||||||||||||||||||||||||||||||||||||||||||||||||||||||||||||||||||||||||||||||||||||||||||||||||||||||||||||||||||||||||||||||||||||||||||||||||||||||||||||||||||||||||||||||||||||||||||||||||||||||||||||||||||||||||||||||||||||||||||||||||||||||||||||||||||||||||||||||||||||||||||||||||||||||||||||||||||||||||||||||||||||||||||||||||||||||||||||||||||||||||||||||||||||||||||||||||||||||||||||||||||
| S.No. | Particulars | Installments |
|---|---|---|
| 1 | At the time of application | 7% |
| 2 | At the time of allotment | 20% |
| 3 | On Start Of Construction | 12.5% |
| 4 | On Completion of Pinth Work | 12.5% |
| 5 | On Completion of 25% of Superstructure | 12.5% |
| 6 | On Completion of 50% of Superstructure | 12.5% |
| 7 | On Completion of 75% of Superstructure | 12.5% |
| 8 | At the time of MEP | 7.5% |
| 9 | On offer of Possession | 5% |
Download the official brochure to get complete details of the project, including specifications, amenities, floor plans, and payment plans.
Download Brochure